Körsbärsvägen 30
Pomona, Ängelholm
På omtyckta och barnvänliga Pomona finns nu möjligheten att förvärva denna härliga familjevilla på lättskött tomt med inbjudande pool och vackert uterum invid grönområde. Genomgående ljus och fräsch bostad med fyra sovrum, härliga sociala ytor, vidbyggt garage, fiberkabel och kamin. Cykelavstånd till skola, hav och centrum. Varmt välkomna!
Fakta
Utgångspris
Fast.beteckning:
Ärrarp 14:146
Rum
6 st
Sovrum
4 st
Boarea
148 m²
Tomtarea
375 m²
Byggnadstyp
1½-plansvilla
Byggnadsår
1976
Fastighetsmäklare
Rum
-
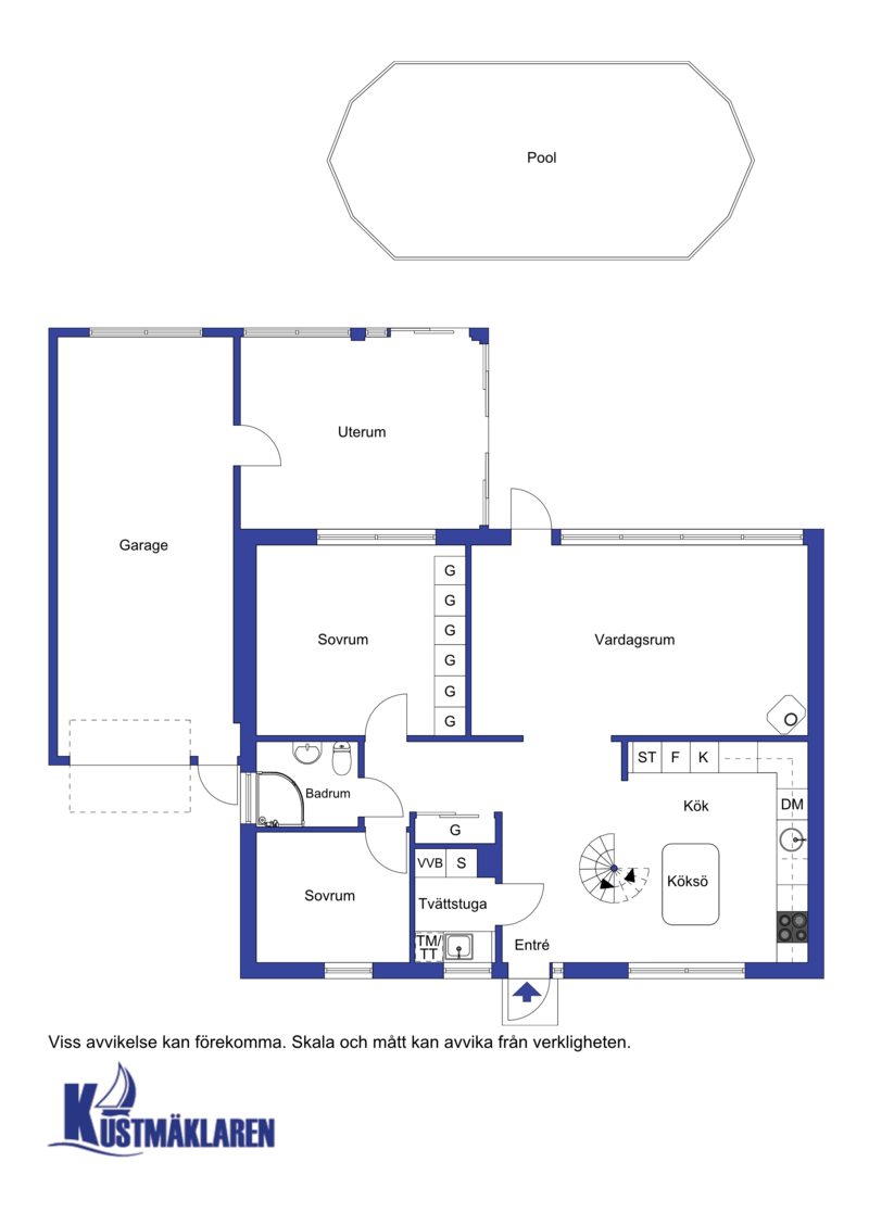
Entré
Välkomnande hall med klinkergolv vid avhängningsytan som därefter övergår i parkett. I hallen finns en praktisk skjutdörrsgarderob och man har en härlig öppenhet till kök och vardagsrum.
-
Kök
Ett härligt kök fullt av karaktär med generös köksö och gott om arbetsytor. Neutralt grå luckor, spis med induktionshäll - 23, fläkt, kyl, diskmaskin och frys med ismaskin. Ett ljusare laminatgolv och den fräcka spiraltrappan till ovanvåningen.
-
Vardagsrum
Vackert vardagsrum med parkettgolv, vita väggar, stora fönsterytor och utgång till trädgården. Här får man plats med matsalsmöblemang såväl som soffgrupp och i hörnan står den prydliga och värmande kamin.
-
Badrum
Helkaklat badrum med duschkabin, wc, kommod, handdukstork och fönster.
-
Två sovrum
På entréplanet finns två sovrum, där det större som vetter mot trädgården har en hel garderobsvägg. Ljusa golv i båda rummen.
-
Tvättstuga
I anslutning till entrén finner vi tvättstugan. Plastmatta, tvättmaskin - 23, torktumlare - 23 och tvättho.
-
Ovanvåning
Via spiraltrappan når vi ovanvåningen där vi möts av ett stort allrum med laminatgolv och fönster i kupa. Rummet är delbart om behovet för fler sovrum skulle finnas. Vidare finner vi två sovrum med laminatgolv och fönster i kupa, ett helkaklat badrum med duschhörna och en rymlig klädkammare.
Tomt
Trädgårdstomt.
Mysig insynsskyddad baksida i söderläge med uteplats, uterum, stenläggning och inbjudande uppvärmd pool. Mindre grönyta och stenläggning framsidan.
Planbestämmelser
Ändring av detaljplan (1992-10-20) Byggnadsplan (1975-10-24)
Servitut, ga, samfälligheter, etc
Avtalsservitut Elledning mm Last: Avtalsservitut Elledning mm, 11-IM5-74/885.1
Bilplats
Uppfart och carport invid garage.Bredband
Fiberkabel finns ansluten.
Ventilation
Självdrag.
Vatten och avlopp
Kommunalt vatten året om. Kommunalt avlopp.
Energideklaration
Utförd
Utförd: 10/12 2018
Klass
E
Förbrukning
83 kWh/kvm per år
Elektricitet
Nätbolag
Öresundskraft
Förbrukning
6 702 kWh/år
Drift per år
Vatten/avlopp
7 860 kr
Elförbrukning
18 145 kr
Sotning
300 kr
Renhållning
2 750 kr
Summa
29 055 kr
Taxeringsuppgifter
Typkod
220, Småhusenhet, bebyggd.
Totalt
2 676 000 kr
Byggnad
1 939 000 kr
Mark
737 000 kr
Skatt/avgift
10 074 kr
Taxeringsår
2024
Värdeår
1976
Pantbrev
Summa
2 890 000 kr
Antal
16 st
Byggnad
Typ
1½-plansvilla
Byggår
1976
Bjälklag
Betong och trä
Fasad
Tegel och trä
Grund
Betongplatta
Grundmur
Betong
Stomme
Trä
Uppvärmning
Luftvärmepump, direkt el och kamin
Tak
Betongpannor
Fönster
3-glas
Renoveringar
Yttertaket har tvättats och målats - 2025. Ny luftvärmepump till poolen - 2023.
Övrigt
Uterum med marksten och vinranka. Skärmtak mellan uterum och vardagsrum så man kan gå torrskodd.
Övriga byggnader
Rymligt vidbyggt garage med utgång till trädgård och uterum.
Karta
Bilder
Körsbärsvägen 30
Framsida
Entré
Entré/hall
Kök
Kök
Vardagsrum
Vardagsrum med värmande braskamin
Vardagsrum
Vardagsrum mot kök
Uteplats
Uterum
Sovrum 1
Badrum
Sovrum 2
Allrum
Allrum
Sovrum 3
Badrum
Sovrum 4
Tvättstuga
Entré
Baksida
Sommarbild
Planritning - Entréplan
Planritning - Ovanplan